
Clinica de Odontologia
142,60m² - 2021 – Pato Branco/PR
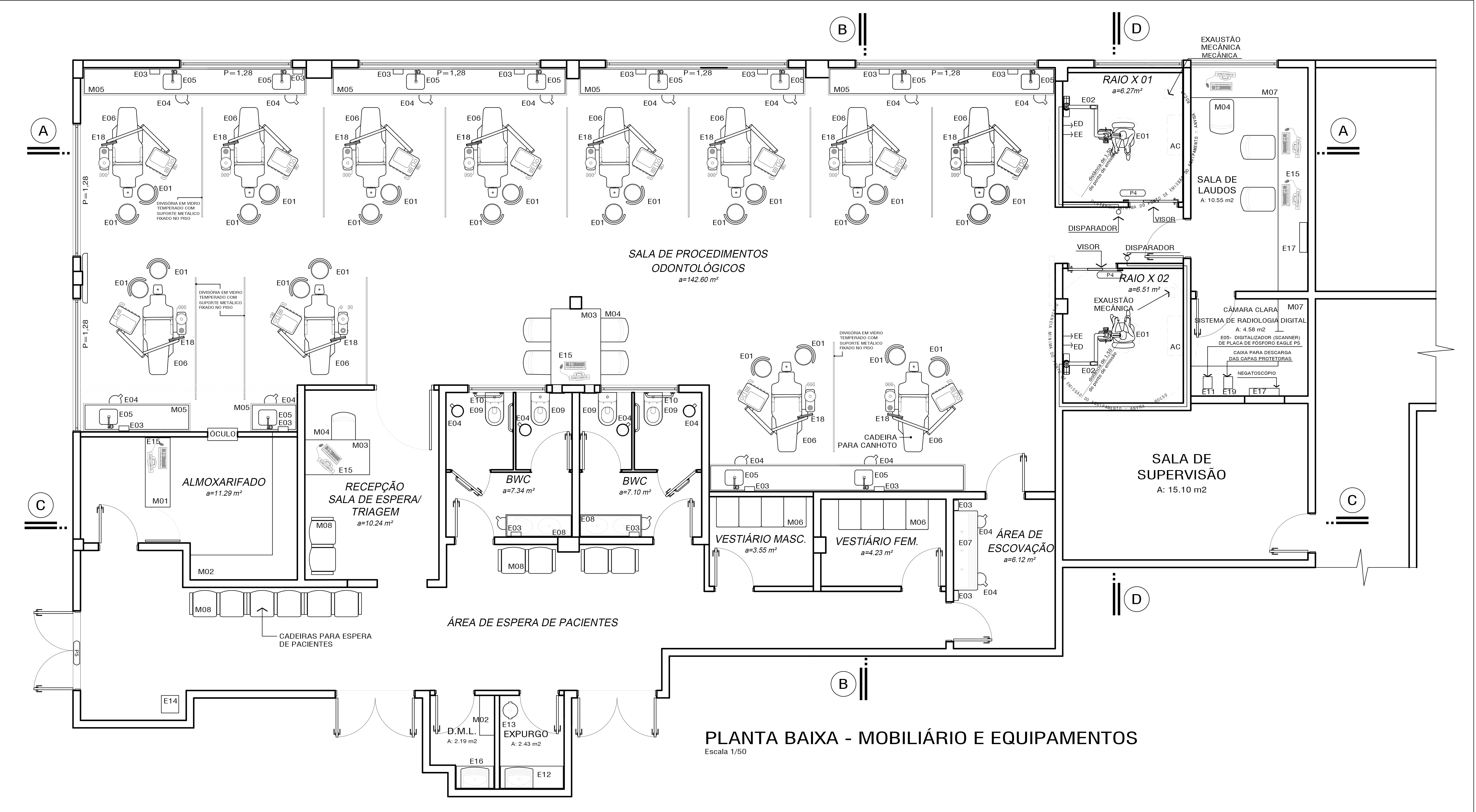
Como em todo projeto para Estabelecimentos de Saúde é necessário um estudo prévio e adequação as diferentes normas de saúde e vigilância sanitária, no caso da clinica odontológica da UNIDEP não foi diferente. Além da necessidade de comportar várias cadeiras de atendimento com toda sua infraestrutura e raios de espaçamento o projeto conta com duas salas para raio x e todos os espaços de apoio necessários para o bom atendimento da população.
Arquitetos: Daniela Scarabelot e Nereu Faustino Ceni
- Data : 20/05/2020
- Cliente : UNIDEP - Afya
- Status : Finalizado
- Localização : Acessar Mapa
